La demande pour les maisons en bois de 70 m² clé en main ne cesse de croître en France. Ce format d’habitation représente aujourd’hui l’un des meilleurs compromis entre surface habitable, budget maîtrisé, performance énergétique et rapidité de construction.
Dans cet article, nous analysons en détail le prix d’une maison en bois de 70 m² clé en main, les critères qui influencent le coût final, les différences entre kit et clé en main, ainsi qu’un exemple concret d’un modèle conforme à la norme RE2020.

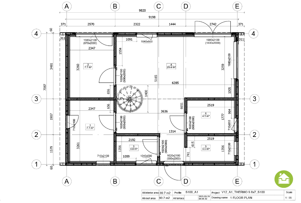
https://chaletpro.fr/maison-70-m2-en-bois-kit-re2020-avec-permis-de-construire-mende-v12-a1
1. Quel est le prix moyen d’une maison en bois de 70 m² clé en main ?
Le prix d’une maison en bois clé en main de 70 m² varie en général entre 75 000 € et 125 000 € TTC, selon le niveau de finition, le type de bois, le type de toiture, l’isolation, la région, et si la maison est livrée prête à habiter ou en version hors d’eau / hors d’air.
| Type de construction | Prix moyen au m² | Prix total estimé (70 m²) |
|---|---|---|
| Maison en kit bois (à monter soi-même) | 600 – 850 €/m² | 42 000 – 60 000 € |
| Maison montée hors d’eau / hors d’air | 900 – 1 200 €/m² | 63 000 – 84 000 € |
| Maison bois clé en main RE2020 | 1 100 – 1 600 €/m² | 77 000 – 112 000 € |
| Maison traditionnelle en béton | 1 500 – 2 200 €/m² | 105 000 – 154 000 € |
Conclusion directe :
Une maison en bois de 70 m² clé en main coûte en moyenne 25 % à 35 % moins cher qu’une maison maçonnée de même surface.
2. Exemple concret : maison bois 70 m² RE2020 MENDE V12_A1

- Surface habitable : 70 m²
- Format : plain-pied + mezzanine
- Livraison + kit complet ossature bois
- Isolation Thermo RE2020
- Menuiseries PVC triple vitrage
- Façade bois traitée trois couches
- Prix kit livré : 43 830 € TTC
- Prix version montée avec garantie décennale : env. 72 000 € à 78 000 €
Ce modèle montre une réalité du marché :
un 70 m² en bois clé en main RE2020 reste sous la barre des 80 000 €, ce qui est impossible avec une construction béton.
3. Maison en kit vs maison clé en main : quelle différence de prix ?
| Critère | Maison en kit | Maison clé en main |
|---|---|---|
| Prix | Le plus bas | 25–40 % plus élevé |
| Montage | Par le client ou artisan local | Par constructeur avec décennale |
| Délai | 3 à 8 semaines | 4 à 12 semaines |
| Garantie | Matériaux uniquement | Assurance décennale + livraison |
| Public cible | Autoconstructeurs, bricoleurs | Familles, résidences principales, locatif |
4. Pourquoi 70 m² est la surface la plus demandée ?
- Suffisant pour un couple ou une petite famille
- Peut comprendre 2 chambres + salon + mezzanine
- Fiscalement intéressant : taxes, chauffage, foncier
- Adapté au marché locatif : Airbnb, gîte, étudiant
- Compatible avec terrain < 500 m²
En version RE2020, un 70 m² offre un coût de chauffage annuel inférieur à 350 € (selon zone climatique).
5. Quels éléments influencent le prix d’une maison bois 70 m² ?
- Type d’ossature (bois massif, contrecollé, CLT)
- Niveau d’isolation (RE2020, triple vitrage, dalle isolée)
- Finitions intérieures (plancher bois, placo, carrelage)
- Type de toiture (bac acier, tuiles, EPDM)
- Kit vs clé en main
- Région + coût de main-d’œuvre locale
- Ajouts techniques (solaire, VMC double flux, PAC air/air)
6. Maison en bois 70 m² : avantages
- Construction 2 à 3 fois plus rapide qu’en béton
- Matériau écologique + stockage CO₂
- Meilleure isolation naturelle (bois = faible inertie thermique)
- Adaptée aux terrains complexes (pente, zone boisée, sol léger)
- Moins de fondations = moins de béton
- Entretien simple
- Architecture modulaire, extensible (possibilité 20 m² supplémentaires)
7. Délais de construction pour une maison bois de 70 m²
| Étape | Durée moyenne |
|---|---|
| Fabrication en atelier | 2 à 4 semaines |
| Préparation terrain + dalle | 1 à 2 semaines |
| Montage structure | 5 à 8 jours |
| Toiture + menuiseries | 1 à 2 semaines |
| Finitions intérieures | 2 à 3 semaines |
Maison prête à habiter en 5 à 7 semaines en version clé en main.
8. Norme RE2020 : obligatoire pour 2024 et après
Une maison bois 70 m² conforme RE2020 inclut :
- Isolation renforcée (murs + toiture + dalle)
- Menuiseries très basse déperdition
- Ponts thermiques quasi inexistants
- Dépenses énergétiques divisées par 3 vs RT2012
- Bbio ≤ exigences légales
Le bois est le matériau le plus avantagé par la RE2020 car il réduit l’empreinte carbone du bâtiment.
9. Peut-on financer une maison en bois de 70 m² comme une maison classique ?
Oui. DROITS IDENTIQUES :
- PTZ (Prêt à Taux Zéro)
- Crédit immobilier classique
- Assurance habitation standard
- Décennale obligatoire sur la pose
Les banques financent même les versions en kit si montage assuré par un artisan assuré décennale.